Бронеколпак предназначен для обеспечения защиты находящегося в нем человека от воздействия неблагоприятных климатических факторов внешней среды, а также поражающего воздействия стрелкового оружия и осколочных гранат.
Код:
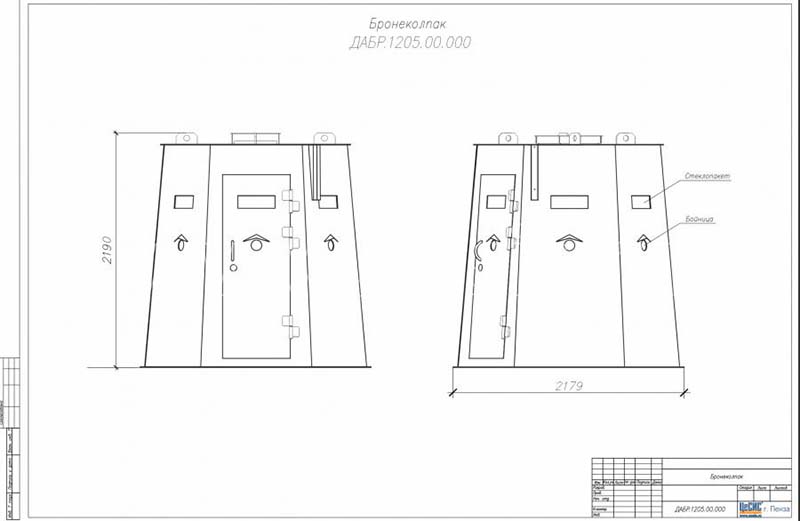
Конструкция бронеколпака
Бронеколпак представляет собой цельносварную пулестойкую конструкцию из стальных бронепанелей.
Входная дверь бронеколпака открывается наружу и запирается изнутри. Замок открывается снаружи с помощью ключа. Состояние двери («открыто»/«закрыто») контролируется датчиком положения.
В стенах и двери бронеколпака оборудованы 6 окон с пулестойкими стеклопакетами.
Для возможности безопасного реагирования на действия противника в случае нападения, под окнами установлены бойницы для ведения ответной стрельбы с расширенным углом обстрела. Бойницы оснащены поворотно-откидным механизмом управления. Конструкция (форма) бойниц исключает рикошет пули (осколков) внутрь изделия.
Преимущества бронеколпака производства компании ЦеСИС
- Все элементы бронеколпака выполнены по классу пулестойкости Бр-4/Бр-5 по ГОСТ Р 51112-97 (в зависимости от исполнения);
- Встроенные датчики для обнаружения проникновения (могут интегрироваться в СКУД);
- Круговой обзор для ведения визуального наблюдения за территорией охраняемого объекта и прилегающей территорией в дневное и ночное время суток;
- Защита часового от поражения стрелковым оружием и осколками гранат;
- Возможность ведения кругового оборонительного боя;
- Эксплуатация во всех климатических районах;
- Быстрый и лёгкий монтаж без сварочных работ.
Составные части и особенности бронеколпака
- Внешнее покрытие стен – броневая сталь;
- Износостойкое защитно-декоративное полимерное покрытие, цвет по каталогу RAL;
- Молниеприемник.
Базовая комплектация
- Светильники светодиодные – 1 шт. (внутреннее освещение);
- Система принудительной вытяжной вентиляции;
- Тревожная сигнализация – для передачи сигнала в караульное помещение при несанкционированном открытии двери бронеколпака;
- Пожарный извещатель;
- Система освещения;
- Система электропитания.
Полимерное покрытие
Основные цвета по каталогу RAL
Наши изделия имеют 5 основных цветов для покраски. Под заказ возможна покраска в любой другой цвет по каталогу RAL.
| Класс защиты по пулестойкости по ГОСТ Р 51112 | |
| — ДАБР.1205.00.000 | Бр-4 |
| — ДАБР.1206.00.000 | Бр-5 |
| Климатическое исполнение по ГОСТ 15150-69 | УХЛ1 |
| Диапазон рабочих температур, оС | От -50 до +50 |
| Габаритные размеры бронеколпака, мм (ДхШхВ) | 2180х1888х2216 (4086 с молниеприемником) |
| Габаритные размеры окон, мм (ВхШ) | 120х350 |
| Габаритные размеры двери, мм (ШхВ) | 600х1670 |
| Диаметр бойниц, мм | 100 |
| Срок службы, лет | Не менее 10 |
| Масса, кг | |
| — ДАБР.1205.00.000 | 1720 +/- 20 |
| — ДАБР.1206.00.000 | 1900 +/- 20 |



